Totem aluminiowy z wbudowanym zegarem LED
Modernizacja istniejącej konstrukcji pod nową specyfikację — projekt i wykonanie podświetlanego totemu z cyfrowym zegarem LED oraz elementami typu pushed-through acrylic.
Irlandia
2025
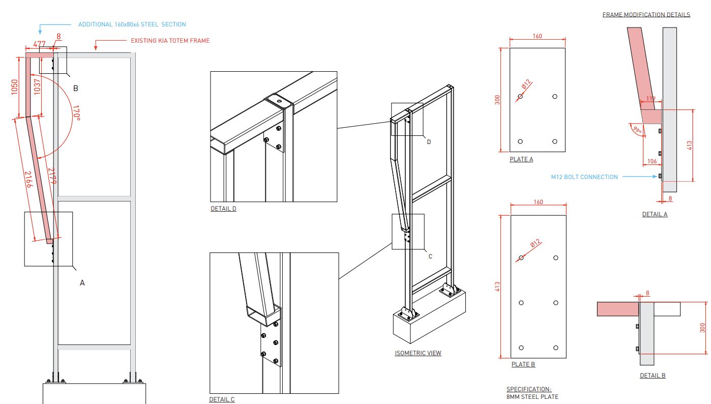
Projekt dotyczył adaptacji istniejącej ramy stalowej pod nową wersję totemu identyfikacyjnego dla salonu samochodowego w Irlandii.

Zakres obejmował przeprojektowanie i wzmocnienie konstrukcji, opracowanie nowych detali montażowych, a także zaprojektowanie i modelowanie 3D nowej okładziny z giętych paneli aluminiowych malowanych proszkowo.

Zintegrowano cyfrowy zegar LED, podświetlane logo typu pushed-through z opalowego akrylu oraz trayback z wewnętrznym oświetleniem LED. Całość uzupełniono o boczne listwy aluminiowe i detale kolorystyczne zgodne z wytycznymi brandu.

System został w pełni opracowany w środowisku AutoCAD 3D, z przygotowaniem kompletnego pakietu produkcyjnego i rysunków montażowych, obejmującego również fundament (base cage) i połączenia kotwiące.

Na bazie starej ramy stalowej wykonano nowy układ wsporczy z dodatkowymi profilami 160×80×6 mm oraz płytami stalowymi 8 mm, które wzmocniły nośność pod nowy front totemu.
Dodano punkty kotwiące oraz płyty montażowe pod bracket zegara LED.

Front wykonano z giętych paneli aluminiowych o grubości 2,5 mm, montowanych bez widocznych łączeń.
Logo zostało zaprojektowane jako pushed-through acrylic 15 mm, z transluscentnym winylem na froncie i oświetleniem wewnętrznym. Panel zegara wykonano z przezroczystego akrylu 5 mm z ramką aluminiową i pełną integracją z oświetleniem.

Przygotowano pełny zestaw rysunków DXF dla elementów ciętych laserowo, detali gięcia paneli oraz montażu logotypu.
Wszystkie elementy zdefiniowano kolorystycznie wg PMS 172C (pomarańczowy) i PMS 11C Cool Grey (ciemny grafit).

Po przygotowaniu konstrukcji i malowaniu proszkowym, elementy zostały zamontowane na miejscu przy użyciu systemu mocowania bazowego z kotwami M12.
Zegar cyfrowy i oświetlenie wewnętrzne przetestowano na etapie instalacji, a gotowy totem uzyskał spójny, nowoczesny wygląd.

Projekt zakończył się pełnym dostosowaniem istniejącej konstrukcji do nowych wymagań funkcjonalnych i estetycznych.
Zastosowanie aluminiowych paneli giętych, precyzyjnego systemu oświetlenia LED oraz detali wykończeniowych pozwoliło uzyskać nowoczesną, trwałą i łatwą w serwisowaniu formę.
Finalna realizacja łączy aspekt techniczny z wysokim standardem wizualnym typowym dla współczesnych obiektów automotive.
Recent Works
Check our new projects


